Sign up

Listed 26 days ago

ID#597449

59 Wallace Street,

Maori Hill

Dunedin
PBN
3
1
2

Premium Location -- Multi-Income Stream Residence

Opportunities like this don't come along very often.
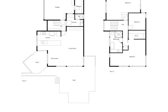
Originally built in the 1960s, this exceptional property has been transformed. The main house boasts a high-spec renovation and the additional properties provide a multi-income stream in a highly sought-after location. Enjoy all-day north-facing sun in a stunning, private setting right on the town belt. The main house has been upgraded to an exceptional standard, featuring:

A stylish kitchen with top-of-the-line Gaggenau appliances
Double glazed throughout & high spec roofing
Central Heating system
Bespoke cabinetry, providing ample storage
Large floor-to-ceiling windows that flood the living areas with natural light
Spacious internal-access garage & workshop on the ground floor
Additional garage and off-street parking
Perfect for entertaining, the home opens out to a picturesque summer dining area beneath a magnificent Japanese maple, surrounded by easy-care, established gardens.
Upstairs, you'll find three bedrooms, beautifully finished. The master with walk in robe is particularly generous and filled with light overlooking the north facing garden. With additional lounging space for those wanting a private retreat. The second bedroom is also generous in size and offers its own extended living space.

At the rear of the property are two x 2-bedroom flats, retaining their retro charm:

One flat is currently tenanted at $450 per week (fixed until May 2026)
The other is vacant, offering flexible use as an investment, extended family accommodation, potential Airbnb or Corporates looking for accommodation for out of town staff.
The current vendor is relocating, and for the first time in 25 years there is a rare chance to secure this exceptional, multi-income property. Tightly held in a premium location close to Dunedin's top schools and a pleasant stroll into the CBD. Whether you're looking to invest, live and earn, or accommodate extended family, this is a prime opportunity not to be missed.

Ask a question about this property

Please leave this field blank:
YOUR NAME
YOUR EMAIL
YOUR MESSAGE

Location

Points of Interest
    Loading...

Agent

Pam Mulder

LJHooker

Licensed Real Estate Salesperson (REAA 2008), Member of the REINZ

I work with You!
For You!

I listen....

... And then I provide a full commitment to you and your property.

...utilising my skills and appropriate marketing strategies to suit you and your needs

With attention to detail
Communication
Enthusiasm
Persistence - it gets results!

... And a level of service well beyond ordinary

My clients know me to be open and direct without being pushy

To achieve RESULTS that are not ordinary either!

read more

This property was photographed by

Ewen Livingstone

Media Specialist

Otago and Southland

ID#597449

59 Wallace Street,

Maori Hill

Dunedin
PBN
proudly marketed by
Pam Mulder
LJHooker
Pam
027 454 3366
Message Me

Leave a message for Ewen Livingstone

Please leave this field blank:
I Would like to
NAME
EMAIL
YOUR AGENT'S NAME
PHONE
MESSAGE
SALE ORDER